N00452 | Byt 1+kk, 37,4 m2 + sklep, OV, Praha 17 - Řepy, ul. Laudova,

Laudova, Praha 17, Praha   mapa

5 300 000 Kč

cena je kompletní a obsahuje všechny poplatky a služby

Exkluzivně vám nabízím k prodeji byt ve vlastnictví s dispozicí 1+kk se sklepem na adrese Laudova 1386/33, Praha 17 - Řepy.
Chcete bydlet v bytě v klidné lokalitě, s dobrou dostupností v žádané lokalitě? Nebo chcete investovat do bytu vhodného pro dlouhodobý pronájem? Máme pro vás jedinečnou nabídku!
O nemovitosti:
•Adresa: Laudova 1386/33, Praha 17 - Řepy
•Dispozice: 1+kk
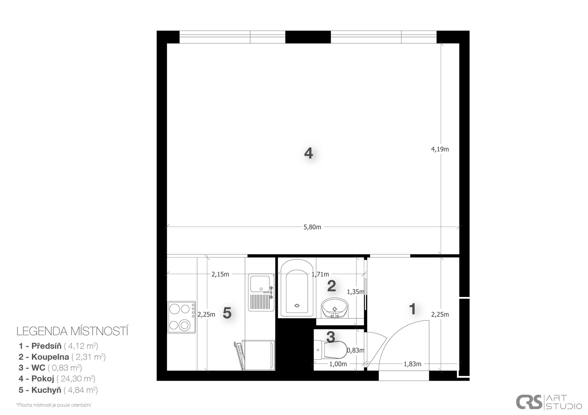
•Rozloha: 37,4 m² + sklep 2 m²
•Umístění: 5. patro (6. nadzemní podlaží) v panelovém bytovém domě s výtahem
•Vlastnictví: Osobní (možnost financování hypotéčním úvěrem)
•Parkování: v okolí domu je mnoho volných parkovacích míst
•Sklep: 2 m² úložného prostoru suterénu domu
Přednosti bytu:
•Prostorný obývací pokoj s kuchyňským koutem a místem na spaní.
•Sklep, jako úložný prostor
•Byt po rekonstrukci
Investiční příležitost:
•Vhodné pro vlastní bydlení i jako investice.
•Atraktivní nájmy: Potenciál pro stabilní a zajímavý příjem z pronájmu
Financování:
•Byt je v osobním vlastnictví: Nákup lze financovat hypotečním úvěrem
Neváhejte a domluvte si prohlídku ještě dnes!
Kontaktujte nás pro více informací a přijďte se přesvědčit, že tento byt je tím pravým místem pro váš nový domov nebo investici. Vaše vysněné bydlení čeká právě na vás!
Dispozice bytu 1+kk
Podlaží v domě 8
Počet podlaží v domě 6
Celková podlahová plocha 37 m2
Druh objektu panelová
Stav objektu velmi dobrý
Vlastnictví osobní
Druh bytu V panelovém domě
Sklep 2 m2
Umístění objektu klidná část obce
Doprava silnice; MHD; autobus
Voda Vodovod; Rozvod studené a teplé vody
Topení Ústřední - dálkové
Odpad Kanalizace
Energetická náročnost budovy G - Mimořádně nehospodárná
Energetický ukazatel
podle vyhlášky
č. 264/2020 Sb.

Prodávající makléř

Pronájem krásného bytu o velikosti 110 m2 s terasou, velkou zahradou a garáží v blízkosti metra. Nabízíme k pronájmu krásný byt v ulici U Nikolajky. Byt má velkou vstupní halu. Pronajímá se zařízený značkovým nábytkem. V kuchyně naleznete kuchyňskou linku Sýkora s kvalitními spotřebiči značky Miele a Kuppersbusch. Obývací pokoj je zařízen Natuzzi sedačkou. Nadstandartně velká ložnice, kde je krom postele velká šatní skříň a spousta úložného prostoru. Další menší ložnice má vestavěnou skříň. Z obývacího pokoje je výstup na zahradu, která skýtá prostor pro příjemné posezení. Zahrada je dostatečně velká pro trampolínu i nadzemní bazén. Koupelna disponuje sprchovým koutem i vanou. V bytě jsou dvě WC, jedno v koupelně, další samostatně. Jednotlivé pokoje jsou neprůchozí. Podlahy jsou kryty parketami. Byt má videotelefon. Vjezd do garáže je na dálkové ovládání. Výhodou je velmi klidná lokalita, v blízkosti parku a dochozí vzdálenosti na metro, zdravotnické středisko a nákupní centrum Nový Smíchov.

Jiří Šimon

Telefon: +420 602 304 070
E-mail: jirisimon@jirisimon.cz

Kontaktní formulář